
老佛爺炭火蛙鍋是李(禮)家餐飲企業管理有限責任公司旗下的時尚美食品牌項目。老佛爺銅爐蛙鍋是一家以炭火牛蛙為特色的餐飲品牌,在前期籌備項目時,試蛙千斤,經過不斷對牛蛙吃法研究和摸索終于做出極品蛙鍋,在哈爾濱、深圳兩店同時啟動,日日火爆。

老佛爺炭火蛙鍋在廣東省江門市江門萬達廣場籌備開門店時,八吉星商廚有幸與老佛爺炭火蛙鍋達成合作,承接了老佛爺炭火蛙鍋廚房工程設計、商廚設備配套、施工安裝等一體式服務。

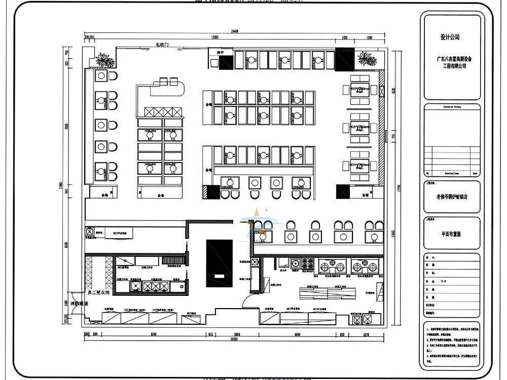
八吉星連鎖餐飲廚房工程師根據老佛爺品牌定位、店鋪裝修風格、菜品種類、加盟檔位等多維度設計廚房樣式,為老佛爺量身定制連鎖餐飲廚房工程解決方案,配套五本品牌廚房設備。

配套設備有:雙頭單尾小炒爐、電磁四頭煲仔爐、雙門平臺雪柜、殺蛙臺、單通傳菜柜、分體式制冰機、雙門消毒柜、六門高身雪柜、炭火爐、單頭煲湯爐、拼爐臺、抽油煙機等。

八吉星商廚初次與老佛爺炭火蛙鍋合作商廚工程,從初步確認廚房設計方案、廚房設備報價、貨物運輸、安裝到售后都深得客戶的滿意與信任。

今天,老佛爺炭火蛙鍋在江門萬達廣場隆重開業了,承老佛爺炭火蛙鍋邀請參加開業盛典,在此祝開張大吉,生意興隆,財源廣進,大展宏圖。八吉星商廚感謝老佛爺炭火蛙鍋的信任,您的滿意是我們的追求,并期待我們還能再次合作!

八吉星商廚承接各類連鎖餐飲廚房工程設計、商用廚房配套、商用廚房改造等服務,可為您解決商用廚房相關的問題,歡迎您的咨詢。




